--   |  设为首页

帮忙装修网

中山

[切换]

上海这套房子装修,40㎡小两房竟做出四分离卫生间!

来自:上海帮忙装修网 日期:2021-12-24 17:22:37 367606 次 分享到:
导读:
房子是套内面积只有47㎡的手枪户型,上海帮忙装修公司分享。

上海帮忙装修网公司分享:今天案例的屋主来自上海,房子是小两口的婚房。

虽然房子是套内面积只有47㎡的手枪户型,在面积极小,并且全屋都是承重墙,动不了结构的情况下,改造后不仅能满足生活、收纳等基本功能需求,男女主人的兴趣爱好,也都有专属的区域。

20211221_110138_157.jpg

改造前

20211221_110138_158.jpg

改造后

20211221_110138_159.jpg

01

玄关走廊

20211221_110138_160.jpg

房子本来没有玄关,一进门映入眼帘的就是长长的走廊,和走廊尽头的卫生间门;改造后沿入户处墙体,安排了两个超薄鞋柜;

20211221_110138_161.jpg

封闭式鞋柜可以放置过季和不常穿的鞋子,开放式鞋柜就放应季常穿的鞋子,完美解决小两口鞋子收纳的问题。

20211221_110138_162.jpg

墙面的挂钩和柜子上的收纳小件,也能满足包包以及细碎物件的收纳。

20211221_110138_163.jpg

靠着“偷”了次卧的1㎡,在卫生间门口做了外置洗手池,盘活了鸡肋的走廊空间;再搭配顶天立地的窄隔断,也解决了卫生间门被一览无遗的尴尬。

细心的朋友应该不难发现,热爱生活的屋主夫妇,还在每个小格子处放置了可爱的小玩偶,增添了不少趣味。

20211221_110138_164.jpg

02

客餐厅

原始的客餐厅面积只有7㎡左右,在基本功能尚且无法满足的情况下,也没有任何收纳空间;改造之后,客厅虽小,却可以满足娱乐、收纳、用餐、休闲、会客等需求。

这得益于设计师重新划分了整个客餐厅的功能空间。

首先是砸掉客厅和厨房之间的隔墙,改造成操作台、吧台二合一的台面,解决了小两口平时的用餐问题。

20211221_110138_165.jpg

台面下方还放置了一张折叠餐桌,亲朋还有来访的时候,拉出来就是一张可以容纳多人聚餐的大桌。

20211221_110138_166.jpg

其次是改变了传统空间布局里沙发靠墙放的习惯,在窗户下安置三人位小沙发,搭配不占空间的小边几,并且在正对沙发的入户处墙面,安装可收缩投影幕布,解决了在客厅基本的休闲娱乐需求。

长虹玻璃双层小边几实用又不占地方,而且它的柚木色和沙发巾的明黄色一起,点亮了以浅卡其色为主的色调,让人眼前一亮。

沿墙面做了开放式满墙置物柜,可以解决客厅书籍、杂物的收纳,还能陈列手办和一些装饰物。

03

厨房

20211221_110138_173.jpg

原本的厨房是典型的“L”型台面布局,放置了冰箱、灶台和水槽以后,丝毫没有任何操作空间。

20211221_110138_174.jpg

砸掉和客厅之间的隔墙以后,在原来墙面的位置做了二合一台面,任何繁杂的切洗操作,在这样的大台面上,都能游刃有余。

高度不一的斜装吊灯、画满了卡通形象的小黑板,都体现出了屋主夫妇热爱生活的态度。

20211221_110138_177.jpg

04

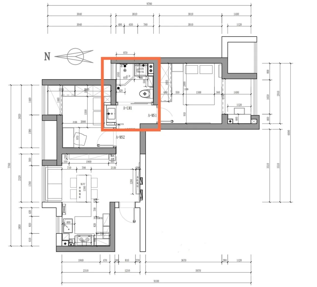
卫生间

20211221_110138_178.jpg

3㎡的卫生间原本连干湿分离也很难实现,最后却做出了四分离!即便放了洗衣机和烘干机进来,也不会显得特别拥挤。

20211221_110138_179.jpg

在无法通过墙体改造,扩大卫生间面积的情况下,只能通过外置洗手池的方法节省空间。

当然,纵向空间和犄角旮旯的缝隙也被利用得十分到位,男女屋主常用的吹风机、剃须刀等小物件都统统上墙,浴室柜底下也收纳了尺寸相宜的盆,让整个洗漱区清爽不杂乱。

20211221_110138_180.jpg

这样一来,卫生间里洗衣机和马桶都能容纳,用上钻石型淋浴房这个小卫生间神器,独立淋浴区也有了。

门后的空间也得好好利用,上方放置了电热毛巾架,上海雨季的时候毛巾再也不用湿漉漉还一股霉味了;下方安装了拖鞋架专门放淋浴时的拖鞋。

20211221_110138_183.jpg

05

主卧

20211221_110138_184.jpg

为了扩大屋主夫妇的收纳空间,榨干了床头和墙角处的面积,做成了钻石型衣柜;并且挖空了衣柜和床等高的位置,承担床头柜的杂物收纳、给手机充电等功能。

20211221_110138_185.jpg

另一侧的床头,搭配了极具氛围感的落地灯,以及多层杂志架。经常翻看的书籍和杂志,躺在床上伸手就能拿到,非常方便。

20211221_110138_186.jpg

阳台面积虽小,但在这光线最好地方,一侧放置了女屋主的画板,另一侧做了可翻折的梳妆台,也算是物尽其用。

梳妆台的镜面翻折下来,就是一张平整的书桌,可以满足屋主夫妇日常办公的需求。在收纳方面,不仅做了连接壁龛的开放式置物架;就连凳子,屋主夫妇也精心挑选了下方可以放收纳盒的款式。

20211221_110138_189.jpg

06

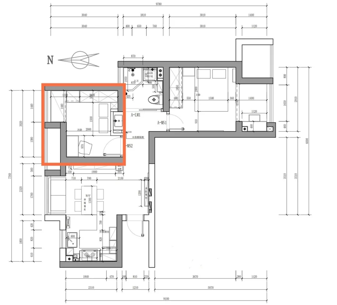
次卧

20211221_110138_190.jpg

本就不大的次卧,“借”了面积给洗手盆以后,空间更是寸土寸金!

次卧想要最大化利用空间,依然是要靠自带强大收纳功能的榻榻米床,无缝衔接顶天立地的定制衣柜。

20211221_110138_191.jpg

就连飘窗也做成了一圈容量够大的收纳柜,就算屋主夫妇以后有了孩子,一家人的床单被子、换季的衣服也能收纳得明明白白。

20211221_110138_192.jpg

进门过道的尽头也无缝做了一张小书桌,为了节省桌面的空间,特地选择了壁灯。

20211221_110138_193.jpg

屋子虽小,但经过了屋主夫妇的一番装点,日子却很温馨。

或拨打免费热线:13822775923

已成功招标53523